Bilocale in vendita

Sovico, Via Camillo Benso Conte di Cavour
€ 59.000
2 locali 2 locali
70 Mq 70 Mq
2 bagni 2 bagni

Bilocale in vendita

Sovico, Via Camillo Benso Conte di Cavour

Descrizione annuncio

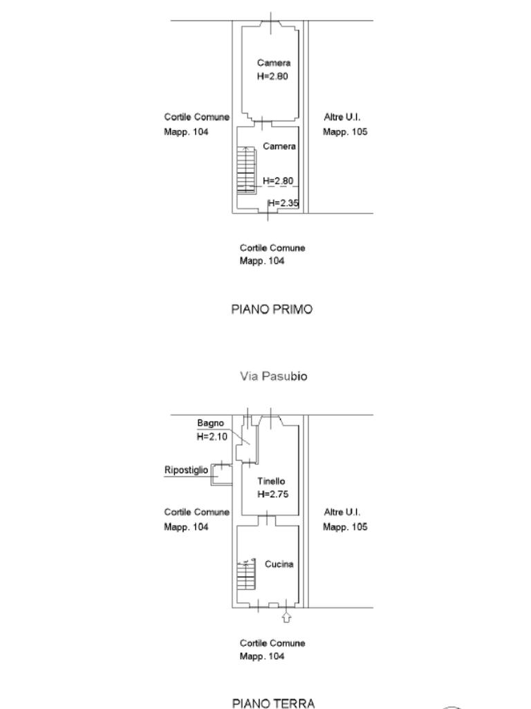
A Sovico, all’interno di una corte storica dal fascino autentico, proponiamo in vendita una soluzione davvero particolare: bilocale su due livelli di circa 70 mq commerciali, completo di box e cantina.

Non è il classico appartamento. È una casa con anima, per chi non cerca spazi standardizzati ma qualcosa di diverso, con carattere e potenziale.

La soluzione si sviluppa su piano terra e piano primo, una distribuzione che permette di separare in modo naturale la zona giorno dalla zona notte, rendendo l’abitazione funzionale e piacevole da vivere. La struttura originale, tipica delle corti d’epoca, racconta una storia e offre oggi la possibilità di reinterpretarla in chiave moderna.

L’immobile necessita di lavori di ristrutturazione, ma è proprio qui che si gioca la vera opportunità: con un intervento mirato è possibile ridisegnare completamente gli spazi, valorizzare i volumi e creare una casa su misura, capace di rispecchiare gusti ed esigenze personali oppure di generare un’interessante rivalutazione nel tempo.

Composizione:

Piano terra: zona giorno con cucina e soggiorno
Piano primo: zona notte con camera da letto e bagno
Box, una vera comodità in contesti di corte
Cantina, utile come spazio accessorio o di deposito

La corte, riservata e tranquilla, offre un contesto autentico e raccolto, lontano dal traffico e dal caos, ma al tempo stesso comodo con tutti i principali servizi, le scuole e i collegamenti della zona. Una soluzione ideale per chi vuole vivere in un ambiente caratteristico senza rinunciare alla praticità.

Per chi è ideale?

Per chi desidera una prima casa personalizzata, costruita realmente su misura
Per chi cerca un investimento intelligente, con un prezzo d’ingresso contenuto e margine di rivalutazione reale
Per chi apprezza le abitazioni con storia, carattere e unicità, lontane dai soliti schemi

L’immobile è libero subito e viene proposto al prezzo di € 59.000 comprensivo di box e cantina.

Questa non è una casa “chiavi in mano”.
È una casa chiavi in testa, pensata per chi sa guardare oltre lo stato attuale e riconoscere il valore che può nascere da un buon progetto.

Contattaci per una visita e per valutare insieme le potenzialità di trasformazione.
Le opportunità vere non urlano. Si fanno trovare da chi sa ascoltare.

Mostra tutto

Nelle vicinanze

Trasporto pubblico Trasporto pubblico
stazione di Macherio-Sovico
stazione di Macherio-Sovico
770 m
Triuggio-Ponte Albiate
Triuggio-Ponte Albiate
1,3 Km
Trasporto pubblico
150 m
Viale Lombardia, 4 (Albiate)
Viale Lombardia, 4 (Albiate)
1,1 Km
Macherio-Canonica
Macherio-Canonica
2,1 Km
Ricariche auto elettriche Ricariche auto elettriche
Piazza Grandi
1,2 Km
U2 Supermercato Biassono | EnelX
2,1 Km
Scuole Scuole
Scuola Secondaria di Primo Grado Giuseppe Parini
360 m
Scuola Primaria Don Milani
440 m
Scuole
1,1 Km
Scuola secondaria di primo grado "Giacomo Leopardi"
1,1 Km
Scuola primaria "Alessandro Manzoni"
1,1 Km
Farmacia Farmacia
Farmacia di Macherio
1,0 Km
Farmacia
1,2 Km
Farmacia Negri
1,5 Km
Farmacia Ariani
2,3 Km
Lloyds Farmacia San Salvatore
2,4 Km
Ospedali Ospedali
Dedalo Psicologia
1,3 Km
Ospedale Vittorio Emanuele III
2,8 Km
Supermercati Supermercati
Coop
1,3 Km
Esselunga
1,3 Km
Supermercati
1,5 Km
LD Market
1,9 Km
Effemarket
2,5 Km
Negozi Negozi
Sanvito
1,1 Km
Negozi
1,2 Km
Abbigliamento Fumagalli
1,4 Km
Civas Abbigliamento
1,4 Km
Dal Prestiné Aliprandi
1,5 Km
Bar Bar
Bar
1,0 Km
Vinyl Cafe
2,4 Km
Feel
2,6 Km
MOLTO Club & Restaurant
2,9 Km
Kiss Kiss Cafè
3,0 Km
Ristoranti Ristoranti
La Dispensa
1,0 Km
La Filanda
1,1 Km
Trattoria Vecchia Brianza
1,2 Km
Pizzeria San Fermo
1,3 Km
Parco dei Principi
1,3 Km
Mostra tutto

Caratteristiche

Rif.:
61156648
Piano:
10 di 2 (Piano terra)
Box:
1
Posti auto:
1
Camere da letto:
2
Arredamento:
Assente
Mostra tutto
Prezzo Prezzo
€ 59.000
Rata mutuo Rata mutuo
€ 278 / mese
Spese annue Spese annue
€ 0
Proponi il tuo prezzoProponi il tuo prezzo
Immobile valutato con T·Valuta

Classe Energetica

G
G
G
G
G
G
G
G
G
EP invernale del fabbricato:
EP estiva del fabbricato:
Anno di costruzione:
1900
Riscaldamento:
Autonomo
Tipo impianto:
A radiatori
Tipo alimentazione:
Metano

Ti interessa visionare l'immobile?

Fissa un appuntamento  Fissa un appuntamento

Richiedi informazioni

Clicca su Leggi per aprire l'informativa
* Questi campi sono obbligatori

Calcola il tuo mutuo

Semplice e senza impegno
Anticipo

( % )
Mutuo

( % )

pochi semplici passi

inserisci i tuoi dati
Questionario completato
Grazie per aver richiesto un appuntamento senza impegno con un nostro Consulente del Credito e Assicurativo.

Hai inserito correttamente tutti i dati necessari e a breve riceverai una e-mail con un link da convalidare per inviare i tuoi dati.
Affiliato
Stella Real Estate Srl
Via Roma, 39 20846 Macherio (MB)

Il nostro staff


  • Aurora Liuzzi
    Affiliata

  • Emanuele Faccini
    Affiliato
Via Roma, 39 20846 Macherio (MB)
Zona: Macherio-Sovico
Mostra su mappa
Affiliato
Stella Real Estate Srl
Via Roma, 39 20846 Macherio (MB)

2026 Tecnocasa Franchising S.p.A. - P. IVA 08365160152 - Via Monte Bianco 60/A 20089 Rozzano (MI). Ogni agenzia ha un proprio titolare ed è autonoma. Privacy policy | Policy utilizzo | Cookie policy